HASANBOY

HOUSES

Team

19Büro​​​​​​​, Sad studio

Location

Tashkent, Uzbekistan

Area

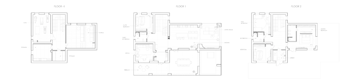
440 sq. m.

Project year

2024

Team

19Büro​​​​​​​, Sad studio

Location

Tashkent, Uzbekistan

Area

440 sq. m.

Project year

2024

Hasanboy House is a contemporary residential concept that expresses modern minimalism through thoughtful spatial design, natural materials, and a strong connection to its surroundings. The project reflects a design approach where architecture becomes a quiet and supportive backdrop to everyday life, allowing the focus to remain on comfort, functionality, and emotional well-being. Rather than seeking attention, the house creates a sense of calm presence through balance and restraint.

The design is centered around the idea of quiet elegance, where every element is carefully considered and nothing feels excessive. Clean lines, open layouts, and subtle transitions between spaces create a harmonious flow throughout the home. The relationship between indoor and outdoor areas is seamless, allowing natural light and views to become an essential part of the living experience.

Instead of relying on bold or decorative features, the project emphasizes refinement through simplicity. The use of natural materials and soft textures adds warmth to the minimalist aesthetic, preventing the space from feeling cold or sterile. Each material is chosen not just for its appearance but for its ability to enhance the overall atmosphere and bring a sense of authenticity to the design.

At its core, Hasanboy House follows the philosophy of “less, but better,” where unnecessary complexity is removed to highlight essential architectural elements such as space, light, proportion, and material. The home is envisioned as a retreat from visual noise, encouraging a lifestyle that values clarity, mindfulness, and comfort. Through its honest and purposeful design approach, the house creates an environment that feels timeless, grounded, and deeply livable.

Living Room

RELATED PROJECTS