BUCHA COTTAGE
INTERIOR
Team
Nikita Feoktistov, Tetiana Feoktistova, Vladyslava Nozdrachova
Location
Bucha, Kyivskyi region, Ukraine
Area
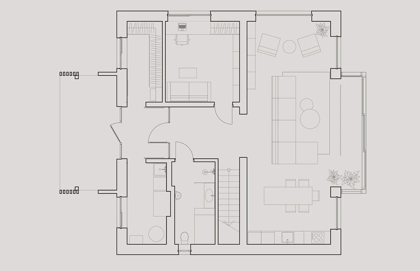
200 sq. m
Project year
2021
Team
Nikita Feoktistov, Tetiana Feoktistova, Vladyslava Nozdrachova
Location
Bucha, Kyivskyi region, Ukraine
Area
200 sq. m
Project year
2021
Bucha Cottage Interior is a contemporary residential interior project located in Bucha, Kyiv region, Ukraine, spanning approximately 200 square meters and completed in 2021. The project reflects a thoughtful balance between modern aesthetics, functionality, and family-oriented living. What makes it particularly unique is its adaptive design approach, as the main structure of the cottage was already partially built, requiring the designers to work within existing constraints while still achieving a cohesive and refined interior. The final outcome is a space that feels natural, open, and deeply livable, where the architecture supports everyday life rather than overpowering it.
At its core, the design follows the philosophy of “design for real living,” prioritizing how spaces are used, experienced, and lived in rather than focusing purely on visual appeal. The concept emphasizes a family-centered spatial layout, the maximization of natural light and openness, and a sense of functional minimalism. The design avoids unnecessary complexity, instead creating a comfortable and intuitive environment where every decision, from layout to furniture placement, is guided by the needs of daily life. This approach results in a home that feels practical, warm, and effortlessly modern.